联系我们
021-69214772
QQ
123456
扫一扫
返回顶部
服务热线:
021-69214772
首页
关于我们
公司简介
总经理致辞
荣誉证书
企业文化
服务理念
产品中心
固体绝缘环网柜
HAI系列
HAAM1系列
HAAM1L系列
HAQ系列双电源自动切换开关
HAM8系列小型断路器
新闻资讯
公司新闻
产品知识
客户案例
客户案例
人力资源
人才理念
人才招聘
客户服务
客户服务
在线留言
联系我们
联系方式
产品中心
固体绝缘环网柜
HAI系列
HAAM1系列
HAAM1L系列
HAQ系列双电源自动切换开关
HAM8系列小型断路器
全国服务热线
021-69214772
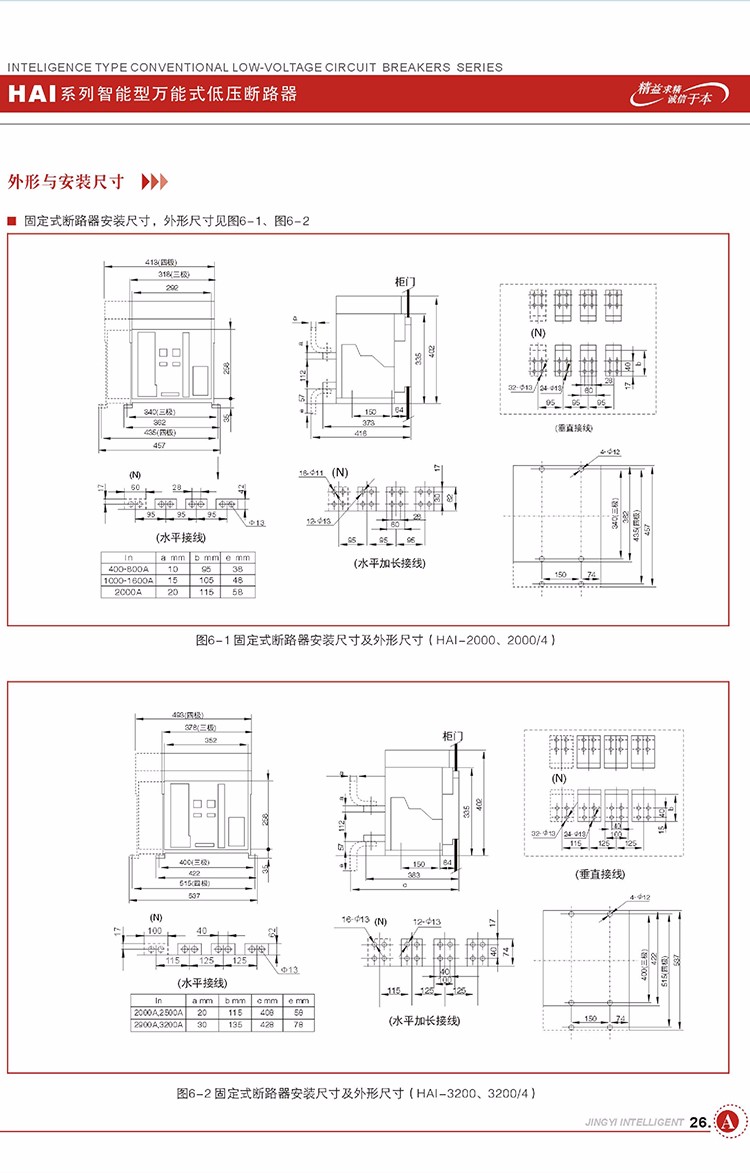
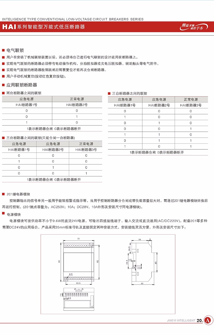
HAI系列
当前位置:
首页
>
产品中心
>
HAI系列
HAI-智能型万能式断路器
2017-11-5 11:55:02